SVS迅控多媒體音視頻產品助力揚州智谷科技綜合體
2017-11-11 16:24:51
揚州智谷科技綜合體位于城市南北主干道揚子江路西側,毗鄰蝶湖商圈、杉灣濕地公園,交通便利,環境優美,是揚州經濟技術開發區臨港新城中心區域,占地29.25公頃。

(上圖引用自園區新聞)
園區打造引領開發區轉型發展的“復合性生產服務集聚區、現代化產業轉型示范區、智慧星科技創新先導區”。
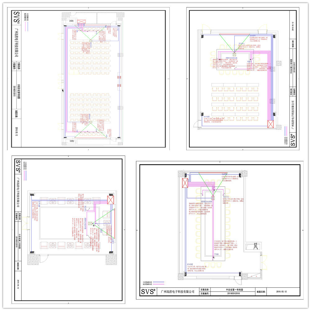
從2016年園區科技項目立項開始,迅控一直配合園區進行包括報告廳、多功能廳、會議室、培訓室等多種多媒體產品應用場所設計、布局、布線;

(效果圖引用自園區新聞)
以下為我司為客戶不同會場設計的布局及布線圖:


SVS作為一個兼具整體化多媒體方案設計和全套多媒體產品供應廠家,我們具有整合全套系統的實力和能力,十幾年的經驗累積,讓迅控可以根據不同會場環境和需要,選擇最適合的產品配置、最優化的布線方式,打造出最佳的多媒體環境。
整體設計、安裝調試、使用培訓,一條龍服務,得到園區領導的高度認可。
以下為部分現場工程圖:













